日本財団 図書館


063-1.gif

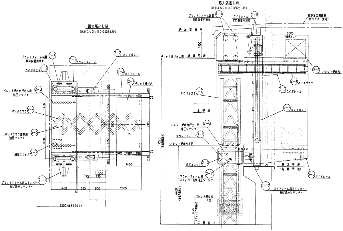
図3 エレベーター装置図

 

 

 

前ページ   目次へ   次ページ

 






日本財団図書館は、日本財団が運営しています。

  • 日本財団 THE NIPPON FOUNDATION