日本財団 図書館


On the other hand, the landward operator takes a container the position of the landward chassis, catches on one, takes off and hoists one only.

As mentioned above, the SUPERTAINER is suitable to the conventional vessel up to the super-large container. It can perform the automatic operation of the landward container handling easily at the fully automatic container terminal. It carries out high efficiency cargo handling. The cargo handling operation by the operator is more easy than that of the conventional crane. The work environment becomes very good.

 

8.2 Development of High Pressure Typed Hydraulic Deck Machinery "ADVANCED SERIES"2)

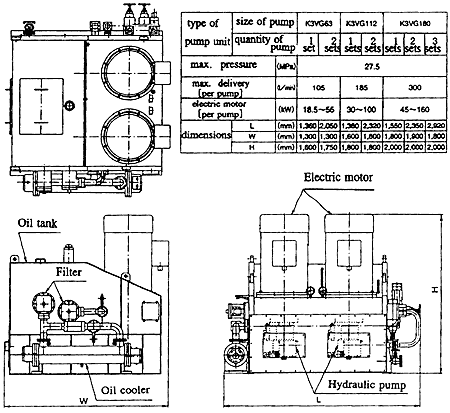
Hydraulic deck machinery, such as windlasses and mooring winches, has been used primarily at a maximum operating pressure of 20.6 MPa. The recent requirement for cost reduction has initiated the design of higher pressure systems where hydraulic components and piping are made smaller. In response to the requirement, Kawasaki has recently released its new "ADVANCED SERIES" hydraulic deck machinery with a maximum operating pressure of 27.5 MPa. Fig.8.3 shows the particulars and dimensions of the pump unit.

Typically, the higher the pressure becomes, the greater the generated noise becomes. In order to reduce the noise, Kawasaki has applied the "K3VG series" axial piston pump that was developed as a low noise pump. Kawasaki has successfully reduced the noise level of the "ADVANCED SERIES" to approximately 8 db (A) lower than the conventional system thanks to this pump and its system design technologies (as shown in Fig.8.4). All necessary components, such as hydraulic pumps, oil tanks, oil coolers, and filters, are packaged into the compact pump unit. Utilizing higher pressure enables the diameters of the piping to be reduced to one size smaller, on average, than those of the conventional system. If this pump unit is connected to the hydraulic motor without a drain line, the hydraulic circuit has no use of the drain line. The "ADVANCED SERIES" significantly reduces installation and piping works in the shipyard.

Fig.8.5 shows two examples of the hydraulic circuits as the standard specification of these series. One is the basic system that is provided to activate the windlasses and mooring winches by series connection, and another is the single main system by parallel connection. As mentioned above, this pump unit has many excellent specialties. When it fits together the high pressure hydraulic actuators, any hydraulic deck machinery can be systematically.

 

059-1.gif

Fig.8.3 Particulars & Dimensions of Pump Unit

 

 

 

BACK   CONTENTS   NEXT

 






日本財団図書館は、日本財団が運営しています。

  • 日本財団 THE NIPPON FOUNDATION